3-Bedroom 3-Bathroom 200 sqm Condo at River House for Rent 70,000 THB/month

  • THB70,000/Monthly
River House, Lat Ya Road, Khlong San, Bangkok, Thailand
For Rent

3-Bedroom 3-Bathroom 200 sqm Condo at River House for Rent 70,000 THB/month

River House, Lat Ya Road, Khlong San, Bangkok, Thailand
  • THB70,000/Monthly

Overview

Property ID: BESTBKK-13337
  • BESTBKK-13337
  • Property ID
  • Condominium
  • Property Type
  • 3
  • Bedrooms
  • 3
  • Bathrooms
  • 200
  • sqm

Description

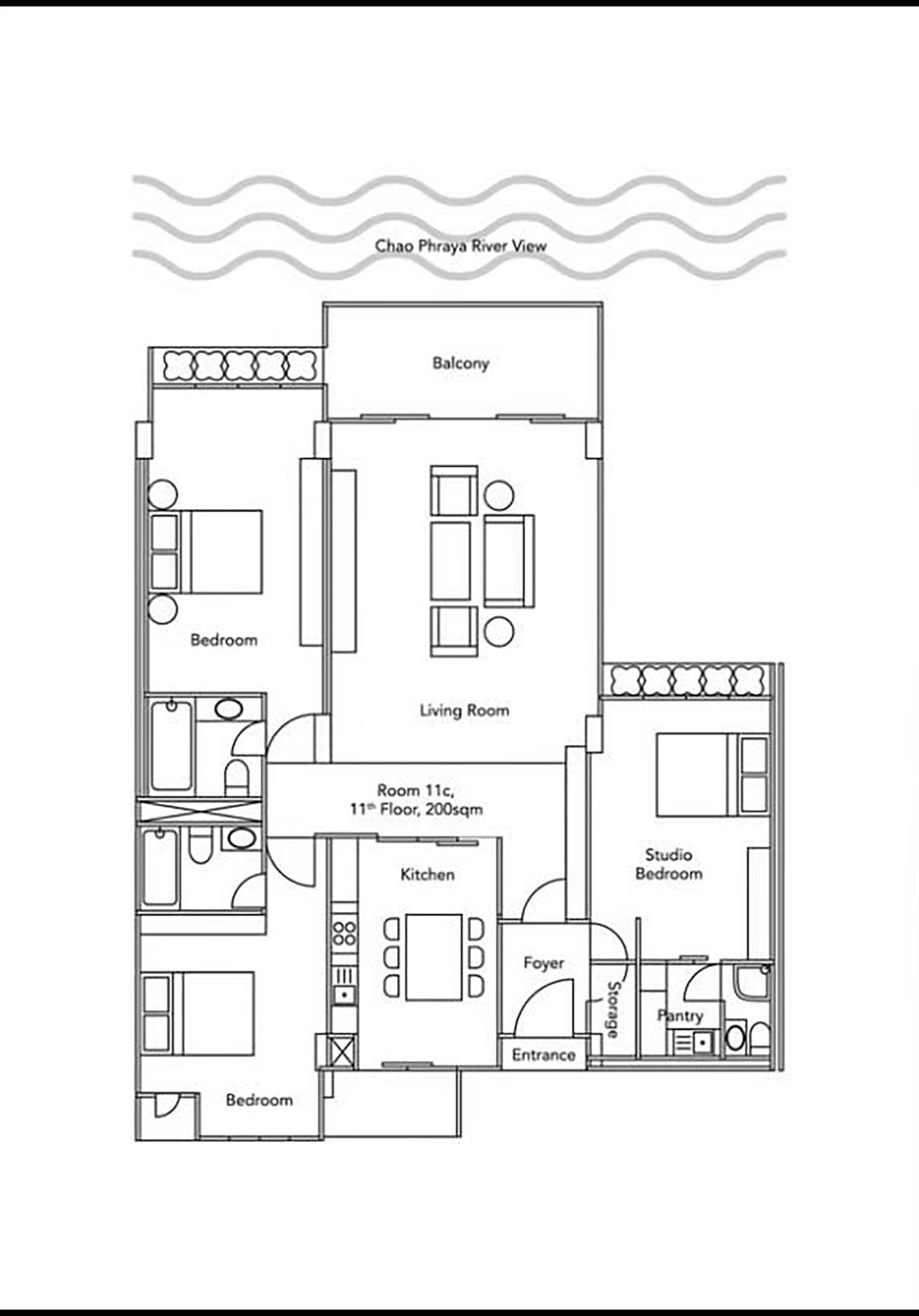
Welcome to an exceptional riverside living experience at River House Condo, a stunning 200 sqm condominium located on the 11th floor, offering expansive views of the Chao Phraya River. This spacious and elegant residence is meticulously designed to meet the needs of those who value luxury, comfort, and convenience.

Property Overview

The property features 3 generously sized bedrooms, each with its own ensuite bathroom, ensuring privacy and comfort for all residents. The master bedroom includes a king-size bed, while the other two bedrooms are furnished with queen-size beds, all designed for a restful and peaceful sleep. Attached to one of the bedrooms is an extra pantry, offering added convenience for personal use or as a service area.

The heart of the home lies in its expansive open-space living room, a perfect setting for relaxation or entertaining guests. The room is tastefully furnished with a sofa bed and lounge chairs, creating a cozy yet sophisticated ambiance. Adjacent to the living room is the kitchen and dining area, which includes high-quality appliances such as a refrigerator, electric cooker, oven, and a dining table for six, making it ideal for hosting intimate dinners or casual family meals.

One of the highlights of this condo is its private balcony, offering breathtaking panoramic views of the river. Whether you’re enjoying your morning coffee or unwinding with a glass of wine in the evening, this outdoor space provides a tranquil escape from the bustling city.

Additional features include a brand-new front-load washing machine, two indoor parking spaces, and a strict no smoking and no pets policy to maintain a clean and peaceful environment. With its modern furnishings and thoughtful layout, this condo is fully equipped and move-in ready, ensuring a seamless transition to your new home.

This luxurious property is available for rent at 70,000 THB/month, with a minimum lease of 12 months and a security deposit of two months’ rent. With its blend of elegance, functionality, and unparalleled riverside location, this is a rare opportunity to experience sophisticated living in one of Bangkok’s most desirable areas.

About River House Condo

Nestled in the heart of Bangkok, River House Condo is a low-rise luxury condominium offering an exclusive living experience by the iconic Chao Phraya River. Known for its classic charm combined with modern convenience, the building caters to individuals and families seeking tranquility amidst the city’s vibrant energy. River House Condominium is a condo and apartment project located in Khlong San, Bangkok and was completed in Jan 1984. It has 54 units across 16 floors.

The condominium is meticulously designed with a blend of contemporary and traditional Thai architecture, offering spacious layouts and spectacular river views. Residents enjoy a range of premium amenities, including a swimming pool, fitness center, and garden area, all designed to foster relaxation and rejuvenation. With its 24-hour security, CCTV surveillance, and keycard access, safety is a top priority at River House Condo.

Whether you’re entertaining guests, enjoying family time, or simply unwinding after a long day, the condo is designed to meet all your needs with elegance and comfort.

Key Features

  • 3 Bedrooms, each with an ensuite bathroom for ultimate privacy and convenience.
  • 200 sqm of living space, perfect for families or professionals seeking ample room.
  • Open-plan living room with comfortable seating and a functional layout.
  • Fully equipped kitchen and dining area, including appliances like an oven, electric cooker, and refrigerator.
  • Additional pantry connected to a bedroom for extra functionality.
  • Located on 11th Floor having Private balcony with breathtaking Chao Phraya River views.
  • 2 indoor parking spaces, ensuring hassle-free vehicle storage.
  • Fully furnished with high-quality furniture, including dining table for 6, sofa bed, and 3 lounge chairs.
  • Brand-new front-load washing machine for laundry convenience.
  • Strict no-smoking and no-pets policy to maintain the pristine environment.

Building Amenities

River House Condo boasts a comprehensive suite of amenities, providing residents with an unmatched lifestyle:

  • Swimming Pool: Relax and rejuvenate in the refreshing pool or lounge by the poolside.
  • Fitness Center: Stay active with state-of-the-art equipment in a fully equipped gym.
  • Garden and Outdoor Areas: Enjoy tranquil green spaces and landscaped gardens.
  • Sports Facilities:
    • 2 Tennis Courts: Ideal for tennis enthusiasts looking for recreation or competitive play.
    • Badminton/Basketball Court: A versatile court for enjoying games with friends or family.
    • Squash Court: Perfect for residents seeking a fun and active pastime.
  • Recreational Spaces: Unwind and socialize in designated relaxation areas.
  • 24-Hour Security: Advanced CCTV and keycard systems ensure your safety at all times.
  • Ample Parking: Dedicated parking spaces to accommodate all residents and guests.
  • On-Site Management Office: Provides prompt assistance for any maintenance or operational needs.

Location Highlights

Strategically located in the vibrant heart of Bangkok, River House Condo offers easy access to a variety of city hotspots and essential services. Its prime location along the Chao Phraya River ensures a tranquil living experience while keeping you connected to the bustling city life.

  • Nearest BTS Stations:
    • BTS Charoen Nakhon: Just a short walk, offering seamless access to the heart of Bangkok via the BTS Gold Line.
    • BTS Khlong San: Another nearby station that connects you to the vibrant Thonburi area and the city’s wider transit network.
  • Expressways: Quick access to major expressways, making travel across the city fast and efficient.
  • Shopping and Entertainment:
    • ICONSIAM: Just a short drive away, Bangkok’s premier luxury mall offering world-class shopping, dining, and entertainment.
    • Asiatique The Riverfront: Enjoy riverside dining, boutique shopping, and lively night markets.
    • Local markets and convenience stores are within walking distance.
  • International Schools: Close proximity to top-tier schools, including Shrewsbury International School and Charter International School, making it ideal for families.
  • Hospitals: Access to top medical facilities like BNH Hospital and Saint Louis Hospital.
  • Dining Options: A plethora of riverside restaurants, cafés, and local eateries to satisfy your culinary cravings.
  • Cultural Landmarks: The property is near cultural attractions like Wat Arun, Grand Palace, and Temple of the Emerald Buddha.

Rent Terms and Price

  • Rent Price: THB 70,000/month
  • Condition : Fully furnished
  • Terms : No Smoking and No Pet Allowed

Contact Information

For more information or to schedule a viewing, please contact us at:

Co-Agents: We have client inquiries! Join our newsletter for updates: bestbkkcondos.beehiiv.com

  • City Bangkok
  • State/county Thailand
  • Area BTS Charoen Nakhon, BTS Khlong San
  • Country Thailand

Details

Updated on February 7, 2025 at 4:32 pm
  • Property ID: BESTBKK-13337
  • Price: THB70,000/Monthly
  • Property Size: 200 sqm
  • Bedrooms: 3
  • Bathrooms: 3
  • Property Type: Condominium
  • Property Status: For Rent

Schedule a Tour

Tour Type

Similar Listings

Compare listings

Compare
Jean Charles Salvin
  • Jean Charles Salvin